Return to Masonry Stove Builders Home Page



Project:
Custom Compact Masonry Heater/Cookstove Design

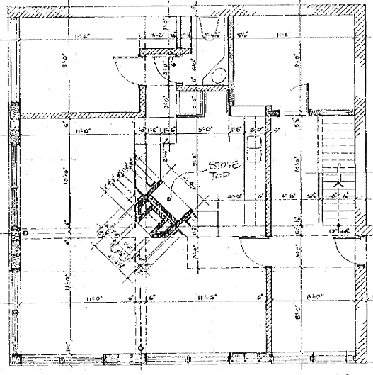
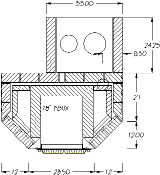
PRELIMINARY DESIGN DRAWINGS 03/08/96

FLOOR PLAN

perspective drawing



Back to:
Masonry Stove Builders Home Page