2108-PERA: HK22 w. oven. Ship to Reno, Nevada. May 1, 2022 layout
2201-ANDO: HK22 w. oven. Shipped to Calgary, AB Mar. 18, 2022. isometric
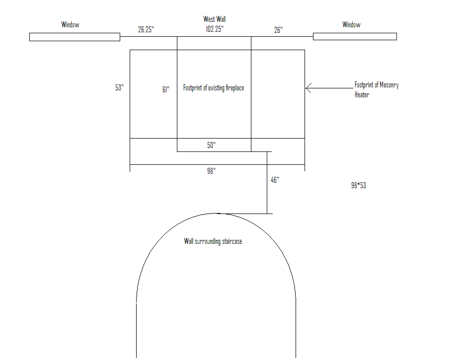
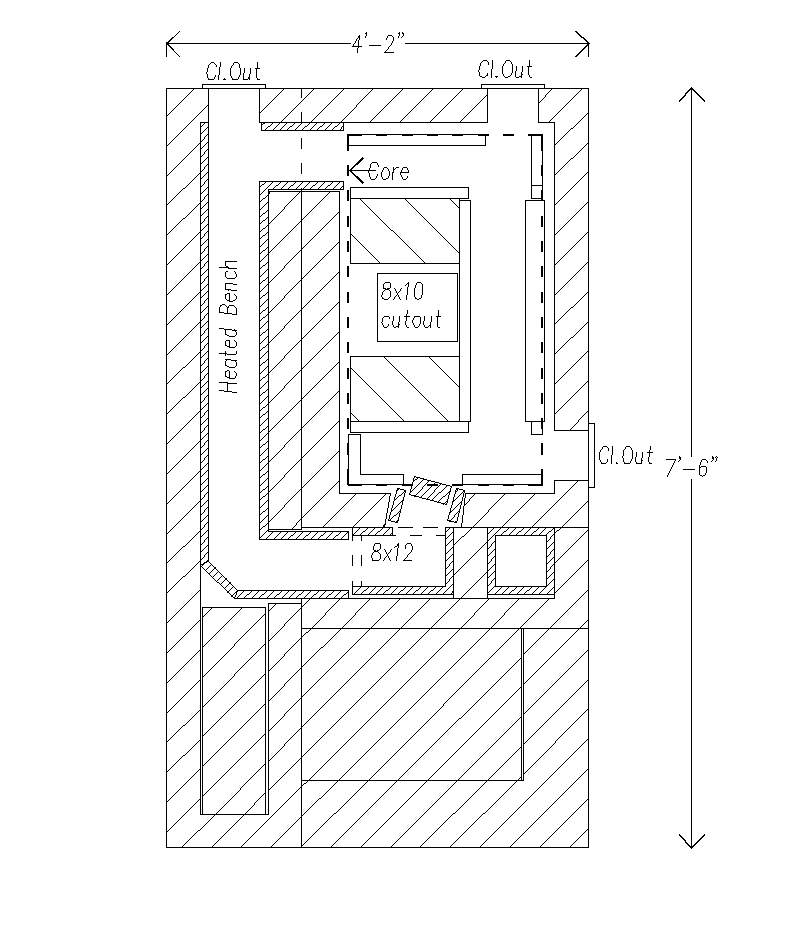
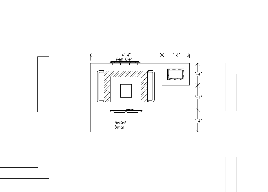
2106-GONZ: HK22 w. oven. Québec City. Retrofit into existing historical house. Pick up at our shop, Oct 31/21. floor cutout details
2104-PACK: HK 22 w. oven, heated bench, slab on grade, outside air. Ship to Garden Bay BC spring 2021. preliminary rendering
2102-SUTE: HK22, details to follow. Ship to Vemont, 2021.
2004-DECI: HK22 w. oven. Shipped to Elmore VT, Aug 18, 2020. Mason: Jermiah Church
2004-HERN: HK22, details to follow. Ship to North Carolina, May 14, 2020
1905-HOGA: HK22 w. oven, shipped to Lewisporte Newfoundland, November 26, 2019
1805-LEAR: HK22 w. oven. Timberframe and strawbale off-grid new construction, Clayton ON. 2018 Heater mason: Colin Coveny Client's interior rendering, house exterior rendering
1810-BRYA: HK22 w. oven, Missouri 2019. Mason: Tyler Scott, Aarons Alternative Energy shipped to Missouri Nov 5, 2019
1711-HERN-HK22
with oven and heated bench based on this design. Shipped core kit to North
Carolina, March 16 2017. plan,
elevation, proposed
footprint
1713-SAWY-HK22
with oven, heated bench and top exit (J-loop). Ship to Saint James,
Missouri., March 16, 2017 proposed footprint
1502-PAQU:
HK22 with oven, stacked heaters. Lac des Ecorces, Quebec. Second core picked up at our shop, January 15, 2017 facing
detail from client. Mason: Alexandre
Paquin
1609-GARD- HK22 with oven. New construction. Shipped to Lantzille, BC, October 18 2016
1510-CASH: 2 stacked heaters. Upper one with oven. Ship to Lava Hot Springs, Idaho, August 23, 2016 preliminary plan
1608-SCOT- HK22 with oven, slab on grade, retrofit, ship core components, Illinois June 30, 2016 Client's Sketchup rendering
1602-PERJ: HK 22 with oven, heated bench. Shipped to St. Louis, Missouri, May 26, 2016. Mason: Aaron's Alternative Energy
950-KING: HK 22, no oven, see-throuh, slab on grade. Lower heater in a stacked pair. Shipped to BC. Nov 20/09. Mason: MHA member Tim King architect's drawing
943-FIRT: HK 22, oven, heated bench, slab on grade. Shipped to Bountiful, Utah, Oct 1/09 layout
942-GOODE03: HK22, oven, heated bench in front. Shipped to Hessel, MI. Oct 1/09. Mason: Bob Goode Tile & Stone 231.238.4858 heater layout and foundation plan
936-BECK2: HK 22, oven. Slab on grade. Retrofit into a strawbale house. Perth, ON. Picked up at shop, Sept 25/09.
939-SZOL: HK22, slab on grade, heated bench. Dunrobin, ON. Picked up at shop Sept 19/09. Mason: Carpathian Masonry
908-KORE:
HK 22, bake oven, rear hot water coil, 12" extra height, custom heated
bench. Oroville, WA. Shipped to Osoyoos, BC for pickup, Feb 13/09.
Client progress photos:
Jan 26/09, photo 1,2, March 20, photo 1,2,3,4,5, March 21, photo 1,2, March 22, photo 1,2,3,4 March 25 photo 1
911-GRACE:
HK 22,no oven. Experimental seasonal heat storage house, Chelsea, QC.
Heater face will be insulated and a custom heat exchanger will
be installed under the ceiling slab to create hot water. Mason: Brad Robinson. Core components delivered to site, Feb 13/09
853-DOYL: HK22, bake oven, DHW coil. Shipped to Witless Bay, Newfoundland. Dec 18/08. Mason: MHA member Martin Palmer layout
847-CONN: HK22, top exit, bake oven. Slab on grade. Timber frame house with hempcrete walls. Chelsea, Quebec. Delivered core to site, Dec 5/08. Mason: MHA member Joel Dick
723-BUSS:
HK 22, rear oven, heated bench, extra heat exchanger, slab on grade. w.
outside air shutoff. Shipped to Sandpoing Idaho (via Cranbrook, BC).
June 7/07 Footprint drawing
721-PIKE10: HK 22 w oven, slab on grade. Ship to heater mason Dan Pike, NY. June 5/07
640-SUTH2: HK 22, slab on grade, Hartington, ON. Second heater for this client. Mason: Colin Coveny, Heritage Stonecraft,
Carleton Place, ON. Picked up at shop, Dec 4/06.
627-SCAF: HK 22, oven, slab on grade. Canton NY. Client picked up at shop. Nov 21/06
637-GATE: HK22, oven. Shipped to Rochester, NY, Nov 13/06.
C-COVE10: HK 22 with bake oven. Slab on grade. For Carleton Place, ON, heater mason Colin Coveny. Picked up at shop April 7/06.
This is Colin's 10th HeatKit installation.
Q55-URBA:
HK22 w. oven, extra 12" height, DHW coil, 4 hydronic heating coils in
upper chamber.
Hydronic design to be by client. New Brunswick. Shipped to New Brunswick,
Nov 17/05 schematic
Q54-CLAG: HK22 with oven,
slab on grade. Shipped to Ohio, Oct 28/05. Phillip Claggett, architect. architect's drawing 1, 2,
3
Q29-KRAN:
HK22 with oven. Owner built adobe earth sheltered home. Shipped to Kamploops,
BC, Oct 28/05 client feedback, Nov 26/13
Q50-MART:
HK22, shipped to Matapedia, Gaspé (Québec), October 21/05 heater footprint
Q61-FISH: HK-22, bake
oven, domestic hot water coil. Shipped to Moreland, Georgia, Oct 14/05 preliminary footprint
C-MCDO: Custom heater w. Heat Kit bake oven, Wakefield, PQ. March
2002. Jim Mahon, mason.
C-WATT: HK-22, bake oven, heated bench. Underground low
energy house. Ship to Bay Bulls, Newfoundland. April 5, 2002 client feedback
C-MOORE: HK-22, Ship to Hagerstown, MD, April 1/02. Mason:
MHA member David Moore
C-MCCL: HK-22 with oven, modified for top exit. Keene Valley,
NY. Picked up Mar. 13/02. Builder: Scott McClelland Contracting.
C-ZORZ: HK-22, Vinemount, ON, Jan 2002, Ron Karson, mason.
C-McGO: HK 22 core components with bakeoven, heated bench. New Jersey.
Shipped Nov 30/01. Mason: MHA member John
Zamkitowitz
C-KUSC: HK22 w. bakeoven, Scotia NY, through Bill Derrick, Alternate Energy Systems.
Builder/mason: Dan Pike, Old World Masonry, Plattsburgh
NY. Pickup at shop, install Nov 18/01.
C-MINO: HK 22 loading door, 2 8x8 dampers. Shipped to Swanton, VT,
Oct 2/01. For owner built custom heater.
C-MCGU: HK 22 core with oven and water coil. Chelsea, Quebec. Picked
up October 1, 2001
C-RUDO: HK22 core with oven, new timberframe house. Shipped to Nashville,
TN, Sept 21, 2001
C-JESK: cores for 2 stacked heaters, one with water coil.
Shipped to Alberta, Aug 22/01. New addition, existing house already has 2
stacked Heat-Kit heaters.
C-HOFL: HK22 core components, bakeoven, hot water coil.
Shipped to Vancouver, B.C., June 27/01
C-ALLE: core for octagonal heater to provide structural
support. Shipped June 6/01 footprint, elevation
C-BLOM: HK22 core components, hot water coil, 2000 sq.
ft. strawbale house, to be shipped to Prince Albert, Saskatchewan. Shipped
June 1/01 client floorplan, proposed heater footprint
C-DERR: HK-22, Peru, NY, delivered April 21/01.Dan Pike,
mason.
C-LUDW: HK-22, oven, see through, shipped to Corwith, Iowa,
Mar 6/01
C-KEYE: HK-22, Rochester, NY, shipped Jan 31/01
C-JANG: HK-22, rear oven, picked up Jan 15/01
C-MCKE: HK-22, shipped to Saranac Lake, NY, Jan 11/01.
Mason: Tom McKernan
C-KUEP: HK-22 w. oven. Shipped to Kitchener, ON, Dec. 19.
Mason: Alvin Kuepfer, Masonal Construction, 519-595-4643.
C-HORN: HK-22 corner unit with front oven. Shipped to Maryland,
Dec 15/00 footprint
C-CUMM: HK-22 core w. ovenand heated bench. Saranac Lake,
NY. Client will picked up Oct 22/00. Dan Pike, mason.
C-PEDE: HK-22 and heated benches, Mayne Island, B.C. Shipped
Oct 15/00 footprint
C-MUZY: HK-22 core with heated bench, oven, domestic hot
water, extra water coil in upper chamber. Allegheny mountains, PA - Picked
up June 28/99 footprint,
client feedback
C-HARR: Heater with plastered facing, bakeoven, heated
bench, domestic hot water. Elizabeth
White, architect. Saltpring Island, B.C. Shipped May 26, 1999. Preliminary
design
C-CHEN: HK-22 core with oven and bench, slab on grade,
Spanish style, Bend, Oregon, shipped April 22, 1999
C-OUEL: HK-22 with bakeoven, shipped to Halifax Apr. 9/99,
Marcel Ouellette
C-COVE: HK-22 core with oven; two precast Rosin fireplaces,
for mason Colin Coveny, Carlton Place,
ON (613-257 4783). Picked up Dec. 11, 1998
C-GRAB: HK-22 core components, bakeoven, domestic hot water
coil. Custom design with 4 ft of extra heat exchange channels extending into
lower level of house. Michigan. Picked up Nov. 14/98. Isometric
C-HART: HK-22 with bakeoven, Texas. Bob Hart, Chimtech. Shipped Nov.
13/98.
C-SOUT: heater core, bakeoven, Kingsmere, Quebec. Nov 7,
1998 pickup by mason Jim Mahon.
C-JESK: 2 stacked heaters. First core shipped to Alberta,
Oct. 9, 1998
C-DITM: HK-22 core components, bakeoven, hot water coil.
Slab on grade. Owner will assembly with his mason's help. Nebraska.Shipped
Aug. 26/98
C-BELA: Heat-Kit 22 core components, bakeoven, domestic hot water.
Sustainable house. Alberta. Aug 15/98.
C-FISH: Heat-Kitt 22 core components, bakeoven, for pickup
by MHA mason John Fisher, New Hampshire,
July 30/98
C-DEWI: HK-22 core components with bakeoven and DWH coil,
design consulting, Georgia. July 28/98. Proposed footprint
C-MCCO: HK-22 core components, bakeoven, PA.
C-MCNE: HK-22 with bake oven, heated bench and domestic hot water.
Heater has extra height to raise oven on kitchen side (sunken floor on loading
door side) Preliminary footprint Client feedback
C-MCDO: Core components for pickup, for mason John McDougall,
Perth, ON. May 25/98
C-KEEF: HK-22 with bakeoven and hot water coil, components
to be shipped to North Carolina.
Mason: Dan Carnes, Fireplace Editions, Carrboro NC, 919-968-8101, fax 969
8353