Return to Masonry Stove Builders Home Page

information on Heat-Kit masonry heater systems

Heat-Kit   Gallery The Brick Bake Oven Page - most popular spot on this site Brick Oven
Page

Bookstore Library Masonry
Heater
Mall
current and recent masonry heater projects Current
Projects
  Contact Search Links FAQ  

CURRENT & RECENT PROJECTS
July 8, 2024



 

View projects organized by heater type 

Client feedbackClient feedback

Current masonry heater projects


Recently completed projects

View this page organized by heater type (Recommended view)

Shipped components
Installed heater cores
Custom heaters
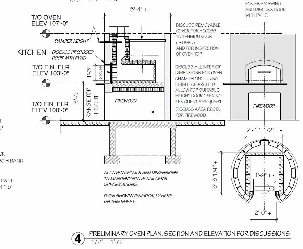
Consulting and Design work
Bake ovens
Miscellaneous

Shipped components back to index

Installed heater cores back to index

photo of finished heater with river rock facing. Mason: Chris Steeves

Custom heaters back to index

 

Consulting and Design back to index

Facebook page


Bake ovens back to index


Miscellaneous back to index

Miscellaneous images back to index

TEMP


 


back to index

Masonry Stove Builders Home Page